what you see …

Wärmepumpe 2016

Motivation

Unsere 27-jährige Elektrospeicherheizung ist in die Jahre gekommen. Wegen des hohen Stromverbrauchs und des steigenden Ausfallrisikos will ich den Stromfresser durch eine moderne Luft-/Wasser-Wärmepumpe ersetzen.

Elektroheizungen wurden in den 80er-Jahren hauptsächlich von den Elektrizitätswerken wegen des relativ billigen Stroms und den bescheidenen Unterhaltskosten propagiert. Sie benötigen keinen Kamin, keinen Tankraum und die einzigen beweglichen Teile sind die Umwälzpumpen. Die Neuinstallation von Elektroheizungen ist mittlerweile aus energetischen Gründen schweizweit verboten.

Eine andere Lösung als eine Luft-/Wasser-Wärmepumpe kommt bei uns nicht in Frage, weil das Haus keinen Kamin für eine Ölheizung hat, kein Gasanschluss in der Nähe liegt und für eine Erdsonde für eine Wasser-/Wasser-Wärmepumpe kein Platz zur Verfügung steht.

Die alte Heizung

Wärmepumpe 2016

Projektierung

Nach einer eingehenden Evaluationsphase entscheide ich mich für die Realisierung einer modulierenden Luft-/Wasser-Wärmepumpe zur Innenaufstellung der Firma ELCO in Zusammenarbeit mit der lokalen und benachbarten Sanitärfirma Guido Sigrist AG, Regensdorf. Als Baumeister wähle ich wie gewohnt Hanspeter Tschirren aus Dänikon, für das Elektrische – ebenfalls wie gewohnt – Ruedi Brunner aus dem Dorf. Die Innenaufstellung wähle ich trotz der höheren baulichen Kosten wegen der besseren Lärmschutzwerte. Meine Nachbarn werden es mir danken und die gesetzlichen strengen Auflagen lassen sich so wesentlich leichter erfüllen.

Die Festlegung der Heizleistung erfolgt auf der Basis des bisherigen Energieverbrauchs, der beheizten Wohnfläche sowie natürlich aufgrund von Erfahrungswerten der Fachleute. Die Wahl fiel auf das Modell ELCO Aerotop-S S09M-IR mit einer nominellen Heizleistung von ca. 9 kW (A-7/W35). Gemäss Herstellerangaben handelt es sich um einer der leisesten Wärmepumpen am Markt, mit einem speziell guten Wirkungsgrad (COP). Das wird sich dann in der ersten Heizperiode zeigen.

Aufstellungsort

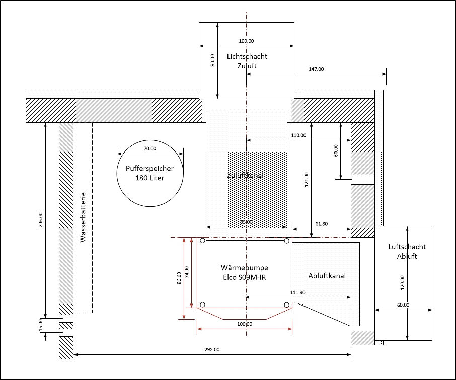
Eine echte Herausforderung ist die optimale Wahl des Aufstellungsortes im Keller, da die Platzverhältnisse bei einem zusammengebauten Einfamilienhaus nicht gerade grosszügig sind. Für eine Luft-/Wasser-Wärmepumpe braucht es je einen genügend gross dimensionierten Luftkanal für Zu- und Abluft. Für die Abluft opfere ich eines der Kellerfenster mit dem zugehörigen Luftschacht auf der Nordseite des Hauses. Für die Zuluft muss ein neuer Lichtschacht mit entsprechendem Wanddurchbruch an der Westwand geschaffen werden. Um die Luftströme möglichst direkt fliessen zu lassen, wähle ich den Aufstellungsort möglichst in gerader Linie zu den beiden Lichtschächten. Dies mag zwar auf den ersten Blick etwas verschwenderisch erscheinen, erlaubt aber eine einfache und elegante Luftstromführung. Das bedingt auch, dass die Wärmepumpe nicht direkt auf dem Kellerboden steht, sondern auf einem Sockel von 32 cm Höhe.

Die Experten der Hersteller- und Sanitärfirma begutachten meine Planung und befinden sie als sehr gelungen und technisch optimal. Damit steht der Realisierung nichts mehr im Wege.

Wärmepumpe 2016

Auf dem folgenden Bild sieht man die geplante Situation vor Ort im Kellerraum. Auf dem Boden eingezeichnet den Standort der Wärmepumpe. Rechts das bestehende Kellerfenster mit Lichtschacht, welches als Abluftkanal umfunktioniert wird. An der hinteren Wand die Umrisse für den Mauerdurchbruch für den Zuluftkanal.

Anmerkung: Die alte Heizung steht in einem anderen Raum und kann bis zur Fertigstellung der Neuen im Betrieb bleiben.

Wärmepumpe 2016

Lichtschacht

Am 2. Mai 2016 fährt planmässig der Bagger auf, um die Grube für den zusätzlichen Lichtschacht zu graben. Der Arbeiter arbeitet mit grösster Sorgfalt und Präzision. Er berührt mit seiner Schaufel kein einziges Mal die empfindliche Hauswand.

Wärmepumpe 2016
Wärmepumpe 2016

Mauerdurchbruch

Schon am nächsten Tag fährt der Spezialist für Betonbohren und -fräsen auf. Routiniert bohrt er die vier Löcher in die Ecken des künftigen Durchbruchs. Dann wird die grosse Betonfräse montiert und die vier Seiten sauber und millimetergenau geschnitten. Dies geschieht mit grossem Lärm und viel Wasser, welches aber laufend abgesaugt wird, sodass keine Überschwemmung entsteht.

Wärmepumpe 2016
Wärmepumpe 2016

Rohbau

Schon nach knapp zwei Stunden wird der Blick frei in den frisch gegrabenen Lichtschacht. Ich staune, wie genau und professionell gearbeitet wird. Das Wasser ist sauber abgesaugt und nach dem restlichen Bohren der Löcher für die Leitungsdurchführungen ist der neue Heizungsraum im Rohbau fertig.

Der erwähnte Sockel für die Wärmepumpe wird nicht aus Beton gegossen, sondern besteht (meine Idee!) aus vier gewöhnlichen Blockstufen, wie sie für Aussentreppen verwendet werden. Das ist wesentlich einfacher und billiger.

Wärmepumpe 2016
Wärmepumpe 2016

Lichtschachtelement versetzen

Auch das Lichtschachtelement wird pünktlich geliefert und mit dem grossen Kranwagen präzise versetzt und mittels zwei (!) Schrauben an der Hauswand befestigt. Nach dem Auffüllen und Stampfen der restlichen Grube mit Erdreich sind die Baumeisterarbeiten zu meiner vollen Zufriedenheit beendet und der eigentliche Heizungsbau kann beginnen. Die notwendigen Gärtnerarbeiten (Humus auffüllen, Rasen säen) mache ich später selbst.

Bevor jedoch mit der Installation der Heizungsanlage begonnen wird, reinige ich den ganzen Raum und streiche alle Wände weiss, damit am Schluss alles ordentlich und gepflegt aussieht.

Wärmepumpe 2016

Wärmepumpen-Installation

Die Wärmepumpe wird pünktlich geliefert und von den Installateuren millimetergenau auf dem vorbereiteten Sockel platziert. Ebenso der 180 Liter fassende passive Pufferspeicher, welcher lediglich die gesamte Wassermenge im Heizungskreislauf vergrössert und so schnelle Temperaturschwankungen verhindert.

Die Installation der verschiedenen Leitungen sowie die Installation der notwendigen Armaturen geschieht zügig entsprechend dem Anlageschema durch die zwei fachlich überzeugenden Installateure sauber und genau.

Wärmepumpe 2016

Die alte Heizung wurde mittlerweile abgeschaltet (es ist Mitte Mai!) und die neuen Leitungen sind an den bestehenden Verteiler der Fussbodenheizung angeschlossen.

Wärmepumpe 2016

Die Sicherheitsgruppe besteht aus dem Sicherheitsventil, einem automatischen Entlüfter sowie dem Manometer mit der Anzeige des Anlagedrucks. Der Druck wird auf ca. 2 bar eingestellt. Der Überlauf des Sicherheitsventils führt in die danebenliegende Tropfwanne der Wasserbatterie (fehlt auf dem Bild noch).

Sichtbar ist auch der Luftkanal für die Zuluft aus dem neuen Lichtschacht.

Wärmepumpe 2016

Für einen späteren Einbau eines Trinkwasser-Wärmespeichers (Boiler) sind die Anschlüsse für Vor- und Rücklauf bereits vorbereitet. Da mein Elektro-Boiler relativ neu ist, verzichte ich vorerst auf dessen Ersatz.

Wärmepumpe 2016

Das sogenannte Überströmventil hilft allfällige grosse Druckunterschiede zwischen Vor- und Rücklauf auszugleichen, um die Umwälzpumpe zu schonen.

Wärmepumpe 2016

Der Luftkanal für die kalte Abluft der Wärmepumpe schliesst das vorhandene Kellerfenster.

Wärmepumpe 2016

Für spätere allfällige Wartungsarbeiten an der Anlage sind diverse Absperrhähne notwendig. Für Servicearbeiten gibt es an der tiefsten Stelle des Leitungssystems einen Schlammabscheider.

Die PUROTAP Patrone filtert beim Nachfüllen Kalk und aggressive Wasserinhaltsstoffe wie Sulfate, Nitrate und Chloride aus dem Trinkwasser. Das Gerät arbeitet auf Basis eines Mischbett-Ionenaustauschers und liefert demineralisiertes Wasser in vollständig entsalzter Qualität. Diese Methode gibt keine chemischen Zusätze an das Wasser ab und arbeitet ohne Fremdstromanschluss.

Wärmepumpe 2016

In gewissen zeitlichen Abständen muss die Wärmepumpe das beim Wärmetauscher entstandene Eis abtauen. Das anfallende Kondenswasser wird in die nahegelegene Abwasserleitung geleitet.

Wärmepumpe 2016

Die fertige Anlage

Und so sieht die fertige Anlage im Gesamten aus. Ich finde, es ist ein gelungenes und sauber ausgeführtes Projekt. Den Sockel habe ich aus ästhetischen Gründen noch mit vorhandenen Bodenplatten eingefasst.

Nun warten wir gespannt auf die ersten kalten Tage im Herbst, um die Anlage im echten Betrieb zu sehen.

Wärmepumpe 2016

Abbruch der alten Heizung

Parallel zum Aufbau der neuen Heizung wird die alte abgebrochen und entsorgt. Zuvor habe ich die Anlage ausgeschlachtet und die Steuerungs-Komponenten und die Heizstäbe entfernt. Möglicherweise benötigen meine Nachbarn in der Siedlung, welche die gleiche Elektroheizung besitzen, irgendwann einmal ein Ersatzteil.

Wärmepumpe 2016
Wärmepumpe 2016

Der Speicherkessel und die alten Leitungen werden mit Elektrosäge, Muskelkraft und unter grossem Lärm zerschnitten und abtransportiert. Das geht schnell und wenig später bleibt nur die leere Ecke mit dem Betonsockel.

Wärmepumpe 2016
Wärmepumpe 2016
Wärmepumpe 2016

Den leeren Sockel belege ich mit noch vorhandenen Bodenplatten und ich streiche die Wände dahinter sauber in Weiss.

Unser Weinkeller fiel der neuen Heizungsanlage im anderen Raum zum Opfer und findet jetzt einen neuen Platz anstelle der alten Heizung. Ein gelungener Tausch, wie ich finde.

Wärmepumpe 2016
Wärmepumpe 2016